114 Hopkinton Road

Concord, NH 03301
Beds
3
Baths
2
Square Ft.
2,996
images
$679,000
Welcome to 114 Hopkinton Rd, beautifully maintained home & grounds w/ a perfect blend of comfort, character, & convenience in one of Concord’s most desirable west-end locations. This property features a warm and inviting layout with generous natural light & well-proportioned rooms. The 30' kitchen provides an ideal workspace forRead MoreRead Less
Courtesy of Barbara Ruedig, Ruedig Realty 603-228-1947
Listing Snapshot
Days Online
0
Last Updated
Property Type
Single Family
Beds
3
Full Baths
2
Square Ft.
2,996
Lot Size
1.89 Acres
Year Built
1850
MLS Number
5084863
Source: Home Junction
30 Days Snapshot Of 03301
$484k
+83%
(avg) sold price
13
-7%
homes sold
26
+30%
(avg) days on market
Snapshot
Area Map
Additional Details
Heating
Oil, Propane, Baseboard, Vented Gas Heater
Property Access
Road Frontage: Yes
Building
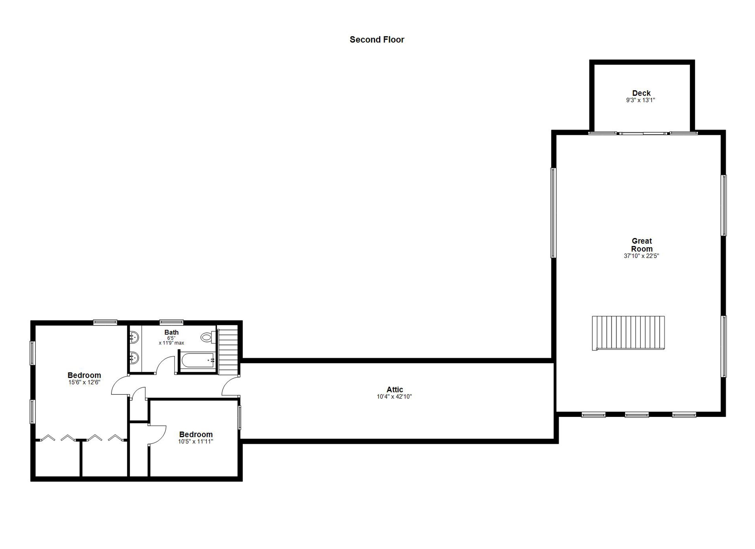
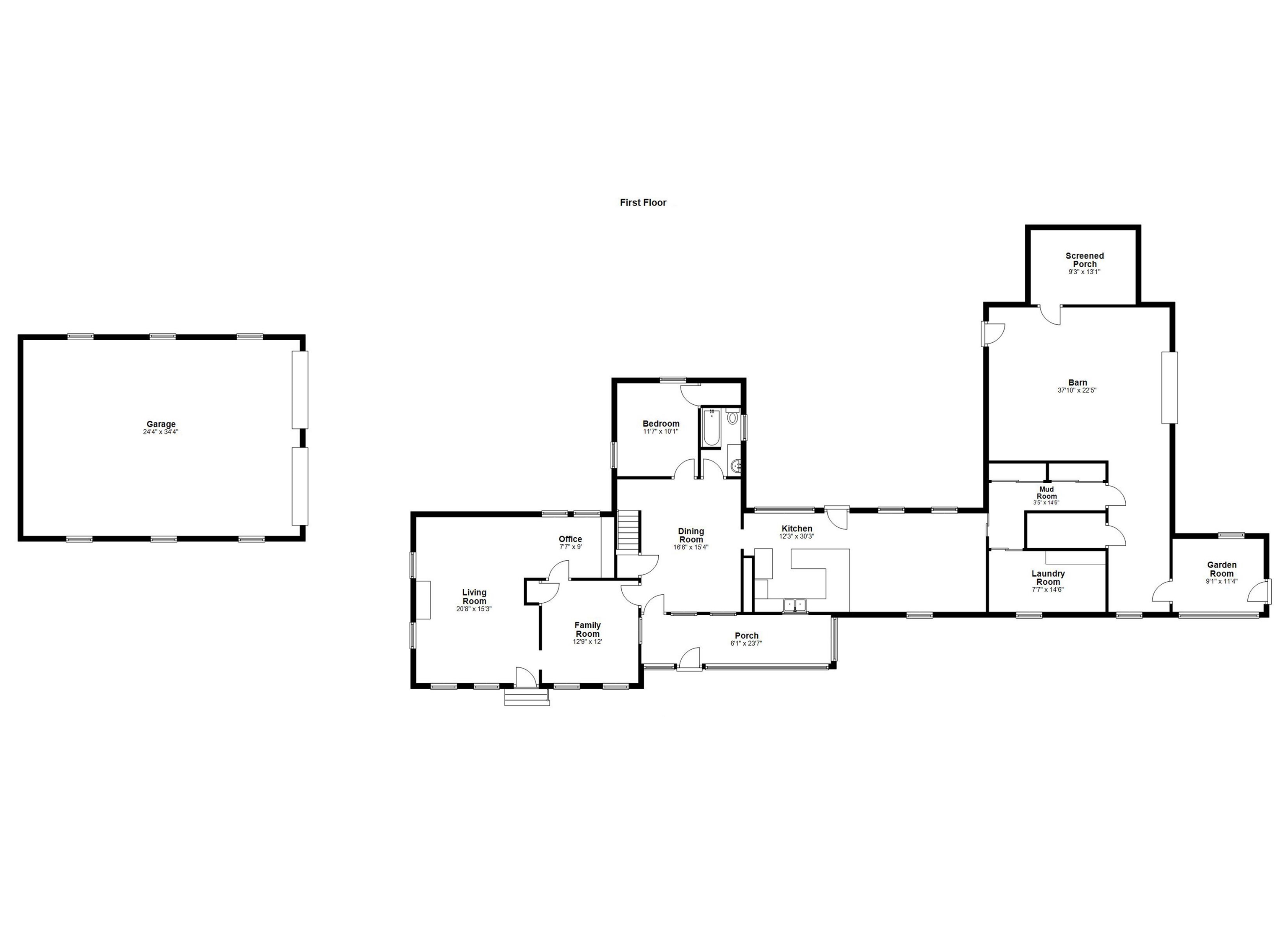
Basement: Yes, 9 rooms, Built in 1850, 2,996 total finished sqft, Total stories: 2, Construction status: Existing, 546 unfinished sqft above grade, 1,050 unfinished sqft below grade, 2,996 finished sqft above grade
Roof
Asphalt Shingle
Basement
Basement access: Walk-up, Bulkhead, Concrete, Concrete Floor, Exterior Stairs, Interior Stairs, Storage Space, Sump Pump, Unfinished, Interior Access, Exterior Access, Basement Stairs
Floors
Carpet, Hardwood, Softwood
Appliances & Equipment
Electric Cooktop, Dishwasher, Dryer, Microwave, Electric Range, Refrigerator, Washer, Domestic Water Heater, Electric Water Heater
Cooling
None
Utilities
Electric: Circuit Breaker(s)
Garage
Garage: Yes, Garage capacity: 4
Lot
1.89 acres, 4,592 approx. sqft, 82,328 sqft
Parking
Driveway: Circular, Gravel
Property
Units per building: 1, Flood Zone: Unknown, Zoning: RO, Owned Land: Yes, Seasonal: No
Sewer
Leach Field, Private, Septic
Taxes
Gross amount: $13,012
Find The Perfect Home

'VIP' Listing Search

Whenever a listing hits the market that matches your criteria you will be immediately notified.

Join The List
Mortgage Calculator
Monthly Payment
$0

Source: Home Junction

Eric Levin
Agent profile image

Schools In The Area

Check out nearby schools with ratings and contact info.

Source: Home Junction

Similar Listings

View More Listings

This information is deemed reliable, but not guaranteed. The data relating to real estate displayed on this Site comes in part from the IDX Program of PrimeMLS. The information being provided is for consumers' personal, non-commercial use and may not be used for any purpose other than to identify prospective properties consumers may be interested in purchasing. Data last updated .
Data last updated .